Immobili Residenziali

Villetta a schiera panoramica

Home » Residenziali » Vendita Residenziali » Villetta a schiera panoramica

280.000 €

Dettagli

Descrizione Immobile

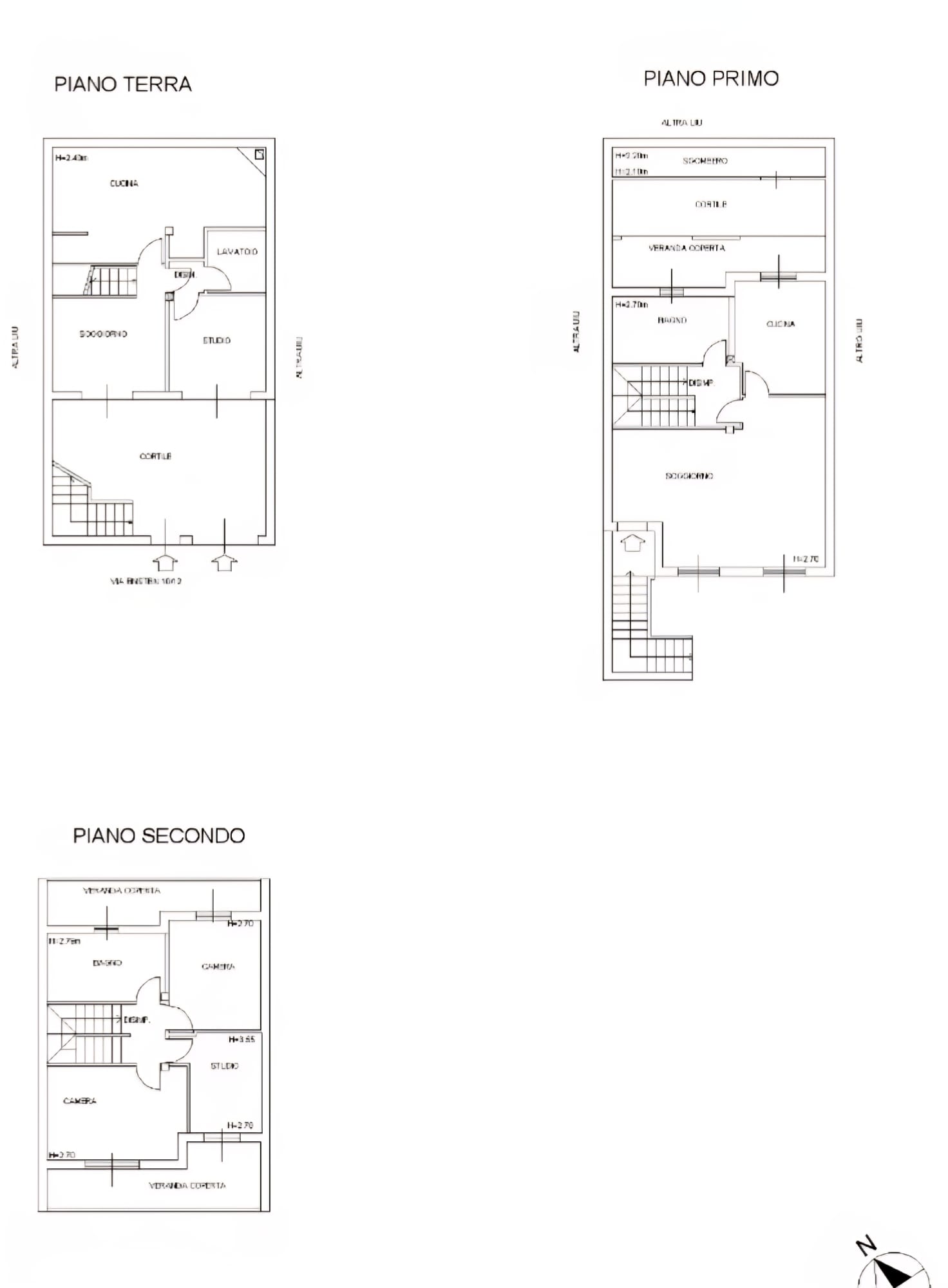
In vendita a Sinnai, una graziosa villetta a schiera di 224 mq catastali , situata in Via Albert Einstein n. 10. La casa si sviluppa su tre livelli, offrendo ampi spazi e comfort. La data di costruzione risale al 2000 e si presenta in buone condizioni di manutenzione, la proprietà si trova in una posizione panoramica.

Composizione e dettagli
L’abitazione è così distribuita:

• Piano Terra: Si accede dal cortile d’ingresso, con un loggiato coperto in legno, e ospita un soggiorno, un disimpegno, una cucina rustica con camino, uno studio e un lavatoio.
• Primo Piano: Accessibile tramite una scala esterna a L o una scala interna a U, questo livello è composto da un ampio soggiorno, una cucina e un bagno. Sul retro, si trovano una veranda coperta, un cortile e un locale di sgombero.
• Secondo Piano: Raggiungibile tramite la scala interna, questo piano include un disimpegno, una camera da letto matrimoniale, una camera da letto singola, uno studio e un bagno. Le due verande presenti su questo piano offrono un valore aggiunto: una è chiusa e coperta e l’altra gode di una vista panoramica sul golfo di Cagliari.
________________________________________
Caratteristiche e dotazioni
La villetta è dotata di pavimenti in ceramica e intonaco civile. Gli infissi esterni sono in legno con doppio vetro. La casa dispone di un impianto di riscaldamento e raffreddamento con pompa di calore al primo piano e condizionatori per gli altri livelli.
________________________________________
Posizione e prezzo
La proprietà si trova in una posizione panoramica del comune di Sinnai da cui si può apprezzare la vista panoramica sul golfo di Cagliari.
Il prezzo di vendita proposto è di € 280.000,00.
Per maggiori informazioni e per fissare una visita, non esitate a contattarci al 3409668748

Caratteristiche

Richiedi Informazioni

Vuoi Vendere Casa?

Affidati alla nostra esperienza e professionalità

Condividi

Share on facebook
Share on whatsapp
Share on linkedin
Share on email

Immobiliare Smart Solution

Immobiliare Smart Solution Partita IVA: 03647620925