Immobili Residenziali

San Bartolomeo: Ampio Ufficio

Home » Residenziali » Vendita Residenziali » San Bartolomeo: Ampio Ufficio

149.000 €

Dettagli

Descrizione Immobile

Un’opportunità unica per professionisti e investitori nel cuore della dinamica zona di San Bartolomeo a Cagliari. Proponiamo in vendita un luminoso ufficio di 80 mq in diritto di superficie, situato al primo piano in una posizione strategica e in forte rivalutazione.

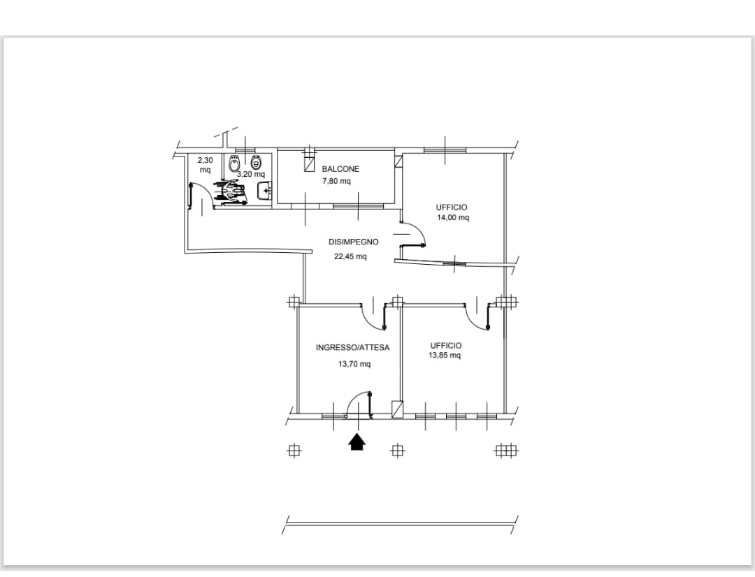
Caratteristiche Principali
Superficie: 80 mq commerciali.

Composizione: Due spaziosi locali, ampio ingresso, disimpegno, bagno e ripostiglio.

Spazi Esterni: Presenza di un ampio balcone.

Luminosità: Ottima esposizione e ventilazione naturale.

Condizioni: Attualmente libero, pronto all’uso, con pavimenti in granito e finiture curate.

Posizione e Contesto
Ubicazione: Zona San Bartolomeo, Cagliari.

Accessibilità: Ben servito dai mezzi pubblici, con numerosi parcheggi nelle vicinanze.

Riqualificazione: Area in fase di forte rivalutazione grazie ai prossimi lavori per la costruzione del nuovo stadio.

Ulteriori Dettagli
Parcheggio: Possibilità di acquistare un posto auto in autorimessa con trattativa separata.

Opportunità: Ideale sia per attività professionali che come investimento immobiliare.

Non perdere questa straordinaria occasione per un investimento strategico e di valore a Cagliari.

Caratteristiche

Richiedi Informazioni

Vuoi Vendere Casa?

Affidati alla nostra esperienza e professionalità

Condividi

Share on facebook
Share on whatsapp
Share on linkedin
Share on email

Immobiliare Smart Solution

Immobiliare Smart Solution Partita IVA: 03647620925